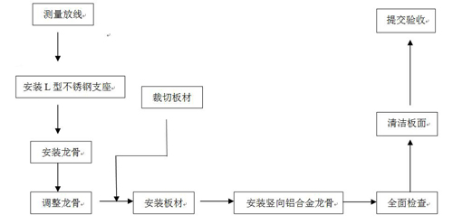
1、安裝工藝流程及所需配件
1.1安裝工藝流程

1.2所需配件及其用途
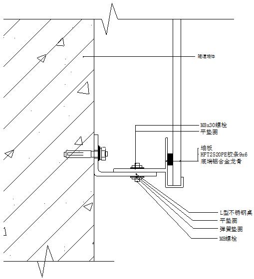
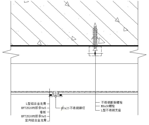
1)L型不銹鋼支座:用于與墻體的連接和龍骨的承接;
2)頂端鋁合金龍骨:用于上方裝飾板頂端的固定;
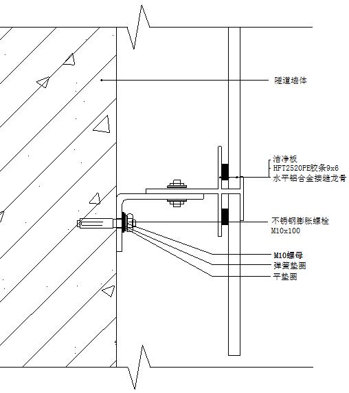
3)水平鋁合金接縫龍骨:用于上方裝飾板底端及下方裝飾板頂端的固定;
4)底端鋁合金龍骨:用于下方裝飾板底端的固定;
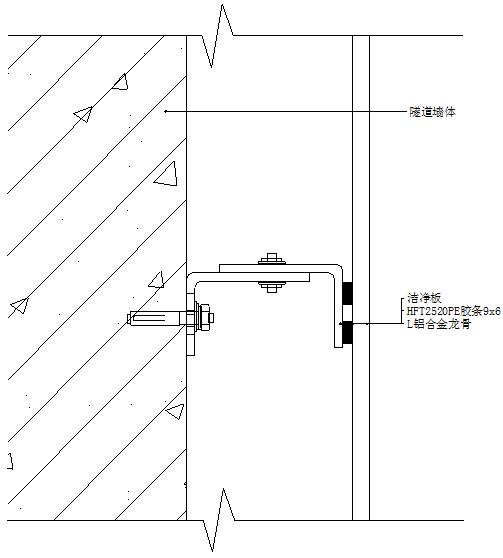
5)L型鋁合金龍骨:用于將裝飾板與龍骨更好的粘接;
6)豎向鋁合金龍骨:用于裝飾板豎縫的處理。
7)不銹鋼膨脹螺栓(M10×100)、不銹鋼螺母(M10) 、平墊圈、彈簧墊圈:用于將L型不銹鋼支座固定在墻體上;
8)不銹鋼螺母(M8)、不銹鋼螺栓(M8×30)、平墊圈、彈簧墊圈:用于將橫向龍骨固定在L型不銹鋼支座上;
9)不銹鋼鉚釘(Φ5×25):用于固定豎向鋁合金龍骨。
10)PE膠條:用于裝飾板與龍骨的粘接。
附:部分配件圖

2、施工方法
2.1 放線
根據施工圖紙,以邊墻頂部為標準在墻上放線。保證隧道內所有橫向裝飾線條應與邊墻頂部平行,并保持線條的流暢性。然后再按照施工圖中要求標記出各個L型不銹鋼支座的位置。在放水平線時設置彈線點相距不大于3m,每次彈線誤差不大于3mm,并每隔10m校正一次,消除誤差。
2.2 L型不銹鋼支座(以下稱支座)的安裝
根據設計圖紙,在隧道側墻壁上彈線,定位;定出各龍骨在支座上的連接點。在定好位置的地方用不銹鋼膨脹螺栓(M10×100)把支座連接在墻上,固定時應保證支座水平。(注意:設計圖紙上固定支座的定位,只是一般規則性的定位,未考慮接縫的誤差,龍骨接縫的誤差以及施工中的誤差,因此在施工中可根據實際情況,在作適當的調整。)
支座是承托整個系統的重要部件。在定好位置標記的地方用不銹鋼膨脹螺栓(M10×100)和不銹鋼螺母(M10)將支座連接在混凝土墻上,注意支座本身的安裝方位應嚴格按照圖紙所示進行,且終固定時應保持所有支座在一條水平直線上。設計圖紙上固定支座的定位,只是一般規則性的定位,原則上相鄰上下兩個支座不能在同一條豎線上。此在定位未考慮龍骨橫向接縫的誤差,因此在施工中可根據實際情況,在作適當的調整。
在安裝支座時,注意不要將支座固定的過緊,只要將支座固定不能移動即可,以便之后的龍骨調整工序的進行。
2.3 龍骨的安裝
2.3.1 安裝龍骨
按照圖紙設計要求,用不銹鋼螺栓(M8×30)把頂端鋁合金龍骨、水平鋁合金接縫龍骨,底端鋁合金龍骨、L型鋁合金龍骨按要求連接在L型不銹鋼支座(以下稱支座)上,通過調整支座上長條孔的連接位置,可對龍骨間距和龍骨與墻面的距離進行調整,以確保龍骨系統豎向與地面保持垂直;續長龍骨,依據第一段龍骨的安裝標準把相應的龍骨續長,續長龍骨接縫間隙為2~3mm,且龍骨兩端應有可靠連接,后把自粘性PU膠條粘接在龍骨的相應位置。
圖示如下:

在變形縫處,橫向龍骨應斷開。并在變形縫兩側不大于200mm處各增加一個支座加固龍骨,縫的間距為5mm。
在安裝龍骨時,連接龍骨與支座的不銹鋼螺栓(M8×30)不要固定的太緊,使龍骨不能大幅度移動即可,否則下一步龍骨調平的施工將很困難。
根據設計圖紙的相關要求及施工現場實際情況,建議先安裝出數米龍骨試驗段,掌握規律后再進行大面積安裝。在進行龍骨安裝時,應注意龍骨的接縫與板材的接縫不得重合,應錯開一定的間隙,以保證豎向鋁合金龍骨的可靠鉚接。所有不銹鋼螺栓應帶彈簧墊圈和平墊圈安裝,并應符合緊固力矩要求,以保證可靠連接。
2.3.2 龍骨調平
龍骨安裝完成之后,要進行調平,以便于隧道防火板的安裝。在進行調平之前,施工人員要預先制作幾塊模板,模板的高度和厚度要與隧道防火板相同,長度1m左右。調平時將模板鑲嵌到龍骨之間,然后利用支座上的長條孔進行調節。要求龍骨在水平和豎直兩個方向上均要平整。
在龍骨調平完成之后,要將支座和龍骨上的螺栓檢查一遍,發現沒有擰緊的螺栓要擰緊。(注意:在進行龍骨安裝時,應注意龍骨的接縫與板材的接縫不得重合,應錯開一定的間隙,以保證豎向接逢龍骨的可靠鉚接。所有不銹鋼螺栓應帶彈簧墊圈和平墊圈安裝,并應符合緊固力矩要求,以保證可靠連接。
2.4 隧道防火板的安裝
2.4.1 安裝隧道防火板
1)隧道防火板的安裝,應由經過專業施工技術培訓的施工人員進行操作。
2)在安裝隧道防火板前,應對裝飾板進行檢查,檢查規格數量是否正確,是否有損壞,顏色是否符合位置要求。用毛刷在裝飾板的截面上涂刷至少兩遍有機硅防水劑,然后根據圖紙上裝飾板與龍骨接觸的地方,在裝飾板上粘貼PE膠條(注:在L型鋁合金龍骨與裝飾板接觸的部位粘貼兩條平行的PE膠條),并根據事先的放線確認安裝位置。
3)隧道防火板的安裝由下至上依次順序安裝,先將第一塊粘貼PE膠條的裝飾板嵌入底端鋁合金龍骨的槽內,板的上端由水平接縫鋁合金龍骨下槽固定,并將板壓實在龍骨上,確保龍骨與板的粘接。
然后再將第二塊裝飾板放入水平接縫鋁合金龍骨上槽(要與安裝好的第一塊板對齊),板的頂端由頂端鋁合金龍骨固定,并將板壓實在L型鋁合金龍骨上,確保龍骨與板的粘接。
4)安裝完后要對板塊進行調整,調整的標準,即橫平、豎直、面平。橫平即橫梁水平;豎直即豎向垂直;面平即板塊在同一平面內或弧面上。
5)安裝時要注意豎向板縫寬度,豎縫不小于10mm。
(注意:根據設計圖紙的相關要求及施工現場實際情況,先安裝出數米龍骨試驗段,掌握規律后再進行大片安裝)
附:立面圖




2.4.2 安裝設備箱
遵循各項目工序間相互銜接與配合的原則,我們在安裝時需預先確定各設備門的安裝位置和所需預留的尺寸,注意背部龍骨和支架不能影響設備的正常安裝。
2.5 豎向鋁合金龍骨的安裝
1)在安裝豎向鋁合金龍骨之前,應先確定頂端鋁合金龍骨與水平接縫鋁合金龍骨以及水平接縫鋁合金龍骨與底端鋁合金龍骨之間的距離,便于裁切豎向鋁合金龍骨。根據圖紙上的設計在豎向鋁合金龍骨和L型鋁合金龍骨上打眼。
2)確認好距離后,在豎向鋁合金龍骨的兩翼內側粘貼PE(9×5mm)膠條,將其粘接在板面上,,再用不銹鋼鉚釘(Φ5×25mm)將其固定在L型鋁合金龍骨上。
圖示如下:

3、安裝自檢
1)徹底檢查已安裝的板材,以保證板材未發生破損。把所有垃圾﹑污物清除干凈,整理并保持工地整潔有序。
2)每完成一段的安裝應檢查施工的整體質量和效果,必要時做適當調整,達到滿意效果后,再進行下一步安裝。
3)在切割板材和給板材鉆孔之后,隧道防火板應注意及時清潔,以清除板面上的殘余塵土和雜物,如果塵土留在上下兩疊放的板材之間,板面容易受到損傷。
4)隧道防火板可以經得起高壓蒸汽及商用洗滌劑的清洗,嚴重的污漬也可輕易得以清除,不會傷及板面,但清洗時要注意防止清洗液腐蝕影響緊固件、骨架構件或承載支撐構件。徹底檢查已安裝的板材,已保證板材未發生破損。
4、清潔板面
為保證工程以及易潔裝飾板飾面質量,需要對板面進行清潔,需要干凈的洗潔布、清洗劑、清水、刀片等工具。
板材表面的膠絲跡或其他污物可用刀片刮凈并用中性溶劑洗滌后用清水沖洗干凈。表面處的污物要特別小心,不得大力擦洗或用刀片等利器刮擦,只可用溶劑、清水等清潔。在全程過程中注意成品保護。
5、檢查驗收
1)安裝之前應檢查裝飾板規格數量是否正確、板材自身是否有問題、是否有損傷;
2)安裝之后應檢查板面是否平整、邊緣是否整齊、是否有裂紋、分層、脫皮、起鼓等缺陷。
3)檢查顏色與部位是否符合設計要求;
4)檢查膠粘的位置是否粘牢,有無異常;
5)檢查L型不銹鋼支座與墻體的連接是否牢固,有無松動的現象;
6)檢查橫向龍骨與L型不銹鋼支座的連接是否牢固,固定豎向鋁合金龍骨的鉚釘是否擰緊。
7)要做好詳細記錄,作為檢查驗收依據。
        
	